Porzione di bifamiliare in vendita

Vigonovo, Via Cesare Battisti - Galta
€ 325.000
4 locali 4 locali
188 Mq 188 Mq
2 bagni 2 bagni

Porzione di bifamiliare in vendita

Vigonovo, Via Cesare Battisti - Galta

Descrizione annuncio

VIGONOVO

Cosa sapere sull’immobile?
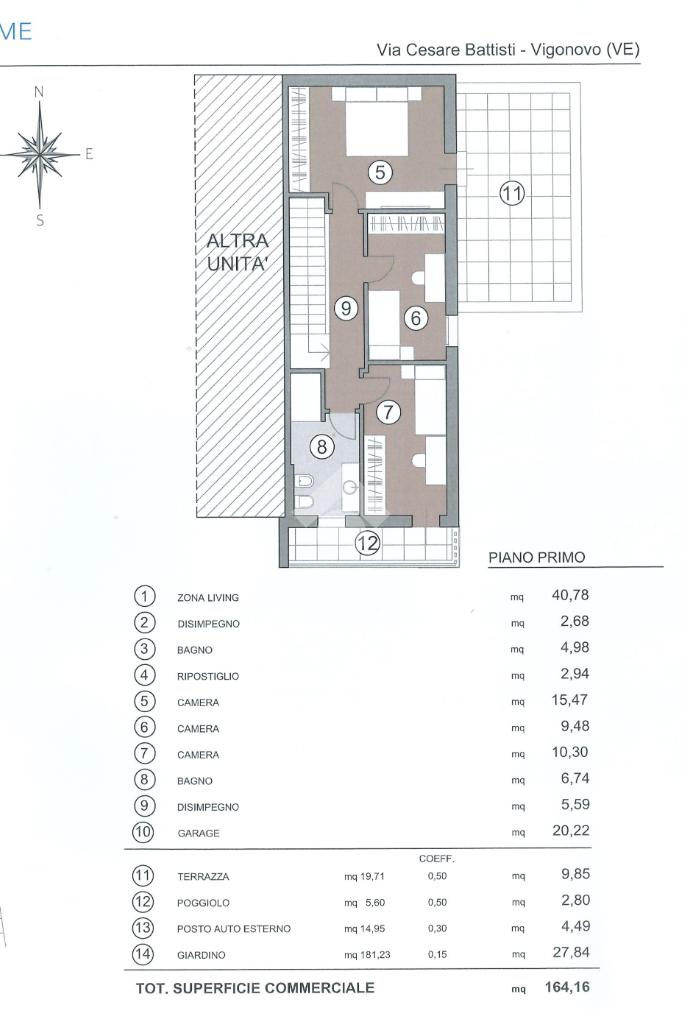
Proponiamo in vendita ultima porzione rimasta di bifamiliare di nuova costruzione, sviluppata su due livelli fuori terra e inserita in un contesto residenziale tranquillo, comodo al centro del paese e a tutti i principali servizi.

L’abitazione ha una superficie commerciale di circa 149 mq e dispone di ingresso pedonale e carraio indipendenti, un garage collegato internamente all’abitazione e un posto auto privato. Completano la proprietà un giardino esclusivo e ampie terrazze abitabili, ideali per vivere gli spazi esterni in piena privacy.

Al piano terra troviamo una luminosa zona giorno open-space di circa 47 mq, con grandi vetrate che garantiscono luce naturale per tutto l’arco della giornata, e un bagno finestrato con doccia, comodo per la zona giorno e per gli ospiti.

La zona notte si sviluppa al piano superiore, dove troviamo una camera matrimoniale con accesso a un ampio terrazzo abitabile, due camere - una delle quali con accesso al poggiolo – e un secondo bagno finestrato con doccia, anch’esso con uscita sul poggiolo.

Ulteriori informazioni?
L’immobile sarà consegnato in Classe Energetica A4 e sarà dotato di serramenti in PVC multicamera, riscaldamento a pavimento, impianto fotovoltaico, scaldasalviette elettrici nei bagni, predisposizione per l’impianto d’allarme e per l’aria condizionata. Una soluzione moderna e funzionale, studiata per garantire il massimo comfort abitativo e un'elevata efficienza energetica.

Cosa sapere sulla zona?
La bifamiliare è situata in una zona tranquilla a pochi passi dai servizi. Una posizione comoda, ben collegata alle principali vie di comunicazione e ideale per chi cerca una casa moderna, efficiente, con spazi ben distribuiti.

Non perdere questa occasione!
Per maggiori informazioni o per fissare una visita in cantiere, contattaci ai numeri:
049.8097681 – 348.5581961
Oppure scrivici una email a: pdhp5

Mostra tutto

Nelle vicinanze

Trasporto pubblico Trasporto pubblico
Trasporto pubblico
2,3 Km
Stra Centro
Stra Centro
2,5 Km
Ricariche auto elettriche Ricariche auto elettriche
Piazza Guglielmo Marconi
860 m
Scuole Scuole
Scuole
490 m
Scuola Elementare Statale "Guglielmo Marconi"
610 m
Scuola Secondaria di I° grado "Alcide De Gasperi"
680 m
Ex Scuola Elementare "Leonardo da Vinci"
830 m
Farmacia Farmacia
Farmacia
390 m
Farmacia
1,7 Km
Farmacia Villa Pisani
2,5 Km
Supermercati Supermercati
Prix
1,2 Km
Eurospar
1,2 Km
Alì
2,6 Km
Negozi Negozi
Market
400 m
Panificio Cacco Silvio
550 m
Spiga d'Oro
2,8 Km
Bar Bar
Bar Birillo
2,8 Km
Ristoranti Ristoranti
Villa Sagredo
1,5 Km
Pizzeria Ermes
2,4 Km
Trattoria ai Vivai
2,5 Km
La baia d'oro
2,8 Km
Ristorante "Da Marziano"
2,8 Km
Mostra tutto

Caratteristiche

Rif.:
61115059
Piano:
2 di 2 (Piano su più livelli)
Box:
1
Posti auto:
1
Balconi:
1
Terrazzi:
2
Mostra tutto
Prezzo Prezzo
€ 325.000
Rata mutuo Rata mutuo
€ 1.544 / mese
Spese annue Spese annue
€ 0
Proponi il tuo prezzoProponi il tuo prezzo

Classe Energetica

A4
A4
A4
A4
A4
A4
A4
A4
A4
EP globale non rinnovabile:
3.79 kW h/m² anno
EP globale rinnovabile:
3.30 kW h/m² anno
EP invernale del fabbricato:
EP estiva del fabbricato:
Anno di costruzione:
2025
Riscaldamento:
Autonomo
Tipo impianto:
A pavimento
Tipo alimentazione:
Pannelli

Ti interessa visionare l'immobile?

Fissa un appuntamento  Fissa un appuntamento

Richiedi informazioni

Clicca su Leggi per aprire l'informativa
* Questi campi sono obbligatori

Calcola il tuo mutuo

Semplice e senza impegno
Anticipo

( % )
Mutuo

( % )

pochi semplici passi

inserisci i tuoi dati
Questionario completato
Grazie per aver richiesto un appuntamento senza impegno con un nostro Consulente del Credito e Assicurativo.

Hai inserito correttamente tutti i dati necessari e a breve riceverai una e-mail con un link da convalidare per inviare i tuoi dati.
Affiliato
Vicus Case Srl
Via Grandi, 8/A 35010 Vigonza (PD)

Il nostro staff


  • Alessandro Berto
    Affiliato

  • Cristina Sartorato
    Coordinatrice

  • Annalaura Zambon
    Coordinatrice
Via Grandi, 8/A 35010 Vigonza (PD)
Zona: Vigonza
Mostra su mappa
Orari: lunedì-venerdì 8.30-12.30/ 15.00-19.30; sabato 9.00-13.00
Affiliato
Vicus Case Srl
Via Grandi, 8/A 35010 Vigonza (PD)

2026 Tecnocasa Franchising S.p.A. - P. IVA 08365160152 - Via Monte Bianco 60/A 20089 Rozzano (MI). Ogni agenzia ha un proprio titolare ed è autonoma. Privacy policy | Policy utilizzo | Cookie policy