Porzione di quadrifamiliare in vendita

Vigonza, Via Campolino - Codiverno
€ 219.000
5 locali 5 locali
180 Mq 180 Mq
3 bagni 3 bagni

Porzione di quadrifamiliare in vendita

Vigonza, Via Campolino - Codiverno

Descrizione annuncio

VIGONZA (loc. Codiverno)

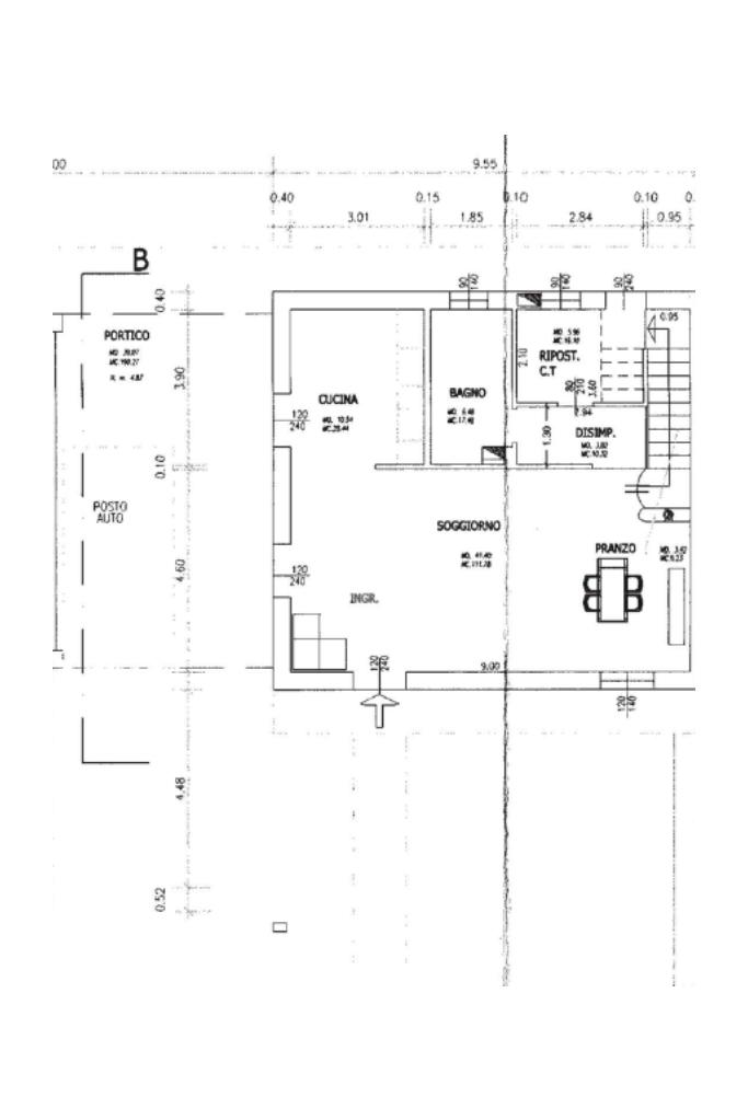
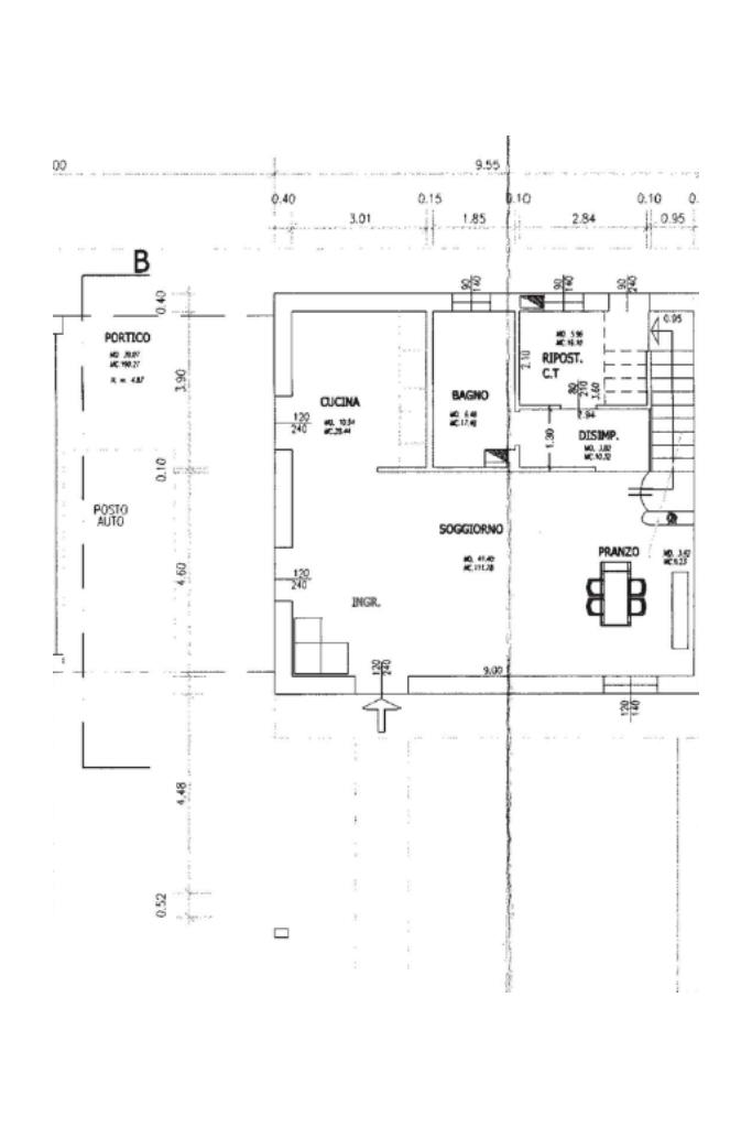
Proponiamo porzione di centro di quadrifamiliare su due livelli, allo stato grezzo, con giardino privato.

Il progetto prevede che entrando nell’abitazione si venga accolti dalla zona giorno con soggiorno di ampie dimensioni e cucina abitabile, entrambi luminosi grazie alla favorevole esposizione est – ovest.

A completamento del piano un bagno finestrato di circa 6 mq, una centrale termica/lavanderia con uscita al giardino.

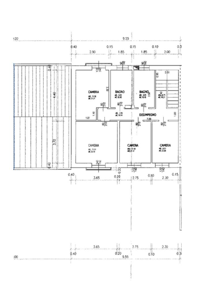
Salendo le scale accediamo alla zona notte composta da tre camere da letto matrimoniali con uscita sui poggioli. A terminare il piano due bagni finestrati e uno spazioso ripostiglio/studio di circa 8 mq.

A completare la dotazione, un ampio portico con posto auto al coperto.

L’abitazione viene venduta allo stato attuale di grezzo, con possibilità di personalizzare gli spazi in funzione delle proprie esigenze.

Cosa sapere sulla zona? L'immobile si trova in un quartiere tranquillo. Il centro di Codiverno, le scuole e tutti i servizi della zona sono nelle immediate vicinanze.

Ulteriori informazioni? La costruzione risale al 2010. E’ costruita con pareti a cassetta, predisposizione per impianto di riscaldamento a pavimento.

Mostra tutto

Nelle vicinanze

Trasporto pubblico Trasporto pubblico
Trasporto pubblico
1,5 Km
Bragni / Canova
Bragni / Canova
2,9 Km
Scuole Scuole
Scuole
60 m
Ic Codiverno
90 m
Scuola Primaria "Guglielmo Marconi"
1,6 Km
Scuola dell'infanzia Maria Immacolata
2,4 Km
Scuola Primaria "Dante Alighieri"
2,5 Km
Farmacia Farmacia
Farmacia
2,4 Km
Ospedali Ospedali
Ospedali
1,8 Km
Supermercati Supermercati
Prix
1,5 Km
Famila
1,7 Km
Ristoranti Ristoranti
Pizzeria Gelateria Tre Stelle
1,4 Km
Ristorante Pizzeria Da Gambaro
2,3 Km
Ostaria da Ciccio
2,8 Km
Mostra tutto

Caratteristiche

Rif.:
61036590
Piano:
2 di 2 (Piano su più livelli)
Posti auto:
3
Terrazzi:
2
Camere da letto:
3
Arredamento:
Assente
Mostra tutto
Prezzo Prezzo
€ 219.000
Rata mutuo Rata mutuo
€ 1.009 / mese
Spese annue Spese annue
€ 0
Proponi il tuo prezzoProponi il tuo prezzo

Classe Energetica

Questo immobile è esente da classe energetica
Anno di costruzione:
2004
Riscaldamento:
Assente

Ti interessa visionare l'immobile?

Fissa un appuntamento  Fissa un appuntamento

Richiedi informazioni

* Questi campi sono obbligatori

Calcola il tuo mutuo

Semplice e senza impegno
Anticipo

( % )
Mutuo

( % )

pochi semplici passi

inserisci i tuoi dati
Questionario completato
Grazie per aver richiesto un appuntamento senza impegno con un nostro Consulente del Credito e Assicurativo.

Hai inserito correttamente tutti i dati necessari e a breve riceverai una e-mail con un link da convalidare per inviare i tuoi dati.
Affiliato
Vicus Case Srl
Via Grandi, 8/A 35010 Vigonza (PD)

Il nostro staff


  • Alessandro Berto
    Affiliato

  • Cristina Sartorato
    Coordinatrice

  • Annalaura Zambon
    Coordinatrice
Via Grandi, 8/A 35010 Vigonza (PD)
Zona: Vigonza
Mostra su mappa
Orari: lunedì-venerdì 8.30-12.30/ 15.00-19.30; sabato 9.00-13.00
Affiliato
Vicus Case Srl
Via Grandi, 8/A 35010 Vigonza (PD)

2025 Tecnocasa Franchising S.p.A. - P. IVA 08365160152 - Via Monte Bianco 60/A 20089 Rozzano (MI). Ogni agenzia ha un proprio titolare ed è autonoma. Privacy policy | Policy utilizzo | Cookie policy