Porzione di bifamiliare in vendita

Vigonza, Via Don L. Milani
€ 460.000
4 locali 4 locali
200 Mq 200 Mq
3 bagni 3 bagni

Porzione di bifamiliare in vendita

Vigonza, Via Don L. Milani

Descrizione annuncio

VIGONZA
Nuova porzione di bifamiliare con giardino privato e ingresso indipendente

Cosa sapere sull’immobile?
In un contesto residenziale tranquillo, proponiamo in vendita una nuova porzione di bifamiliare, sviluppata su due livelli fuori terra e caratterizzata da un design moderno, linee architettoniche pulite e finiture di alta qualità.

L’abitazione è realizzata secondo i più recenti standard costruttivi, con struttura antisismica e tecnologie ad alto risparmio energetico, che permettono di raggiungere la Classe Energetica A4. Gli ambienti sono pensati per offrire il massimo comfort abitativo, grazie anche alle elevate prestazioni in termini di isolamento termico e acustico.

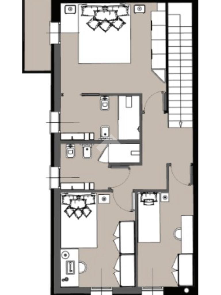
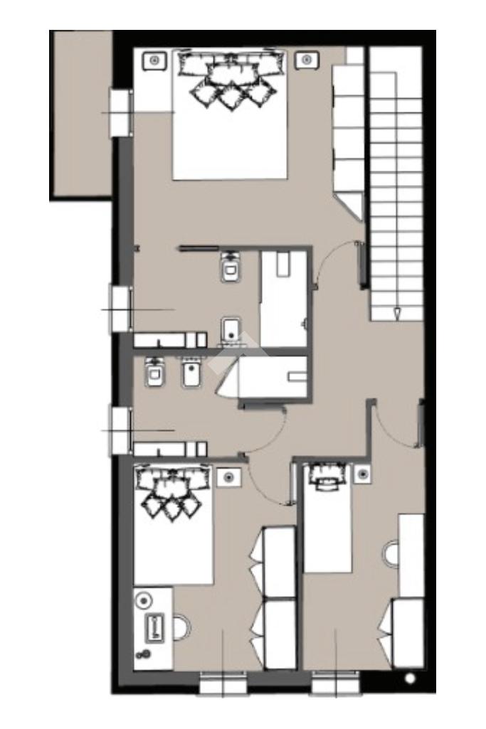
L’ingresso è completamente indipendente, sia pedonale che carraio, e l’immobile è circondato da un giardino privato. Al piano terra si sviluppa un’ampia e luminosa zona giorno open-space di circa 62 mq, con grandi superfici vetrate che garantiscono luminosità per tutto l’arco della giornata. Completano il piano un bagno di servizio, un pratico ripostiglio, un locale tecnico, la lavanderia e un garage collegato internamente all’abitazione.

Al piano primo si trova la zona notte, composta da una camera matrimoniale con bagno padronale e accesso al poggiolo, due ulteriori camere da letto e un secondo bagno finestrato.

Ulteriori informazioni?
La porzione è dotata di impianti di ultima generazione, tra cui riscaldamento a pavimento con pompa di calore, impianto fotovoltaico da 3 kW, sistema di climatizzazione canalizzato e impianto di ventilazione meccanizzata centralizzata. È inoltre prevista la predisposizione per l’impianto d’allarme.

Grazie alla tripla esposizione (Nord, Sud e Ovest), tutti gli ambienti risultano ben arieggiati e naturalmente illuminati, rendendo la casa confortevole e piacevole da vivere in ogni stagione.

Cosa sapere sulla zona?
L’immobile si trova in una zona residenziale tranquilla e riservata, ma al tempo stesso comoda ai principali servizi. La stazione ferroviaria dista pochi minuti, mentre il centro di Vigonza è raggiungibile in soli 2 km. Una posizione ideale per chi desidera vivere in una casa moderna, efficiente e ben collegata, senza rinunciare alla tranquillità.

Non perdere questa occasione!
Per maggiori informazioni o per fissare una visita in cantiere, contattaci ai numeri:
049.8097681 – 348.5581961
Oppure scrivici una email a: pdhp5

Mostra tutto

Nelle vicinanze

Trasporto pubblico Trasporto pubblico
Vigonza-Pianiga
Vigonza-Pianiga
850 m
Ricariche auto elettriche Ricariche auto elettriche
VIGONZA Costituzione | BECHARGE
2,0 Km
Scuole Scuole
Scuola Primaria "Ruzante"
1,6 Km
Scuole
1,6 Km
Scuola Media Don Milani
1,7 Km
Supermercati Supermercati
Ali
2,0 Km
Negozi Negozi
Panificio Pasticceria San Martino
2,1 Km
Bar Bar
Caffè Degli Artisti
2,2 Km
Movembik
2,3 Km
Bar Centrale
2,3 Km
Ristoranti Ristoranti
Antichi Sapori
540 m
Trattoria Piccolo Giorgio
1,2 Km
Tratoria ai Siegoi
1,6 Km
Marchioro
1,8 Km
La Casaccia da Bacco
2,8 Km
Mostra tutto

Caratteristiche

Rif.:
61114518
Piano:
2 di 2 (Piano su più livelli)
Box:
1
Posti auto:
1
Balconi:
1
Camere da letto:
3
Mostra tutto
Prezzo Prezzo
€ 460.000
Rata mutuo Rata mutuo
€ 2.185 / mese
Spese annue Spese annue
€ 0
Proponi il tuo prezzoProponi il tuo prezzo

Classe Energetica

A4
A4
A4
A4
A4
A4
A4
A4
A4
EP globale non rinnovabile:
3.37 kW h/m² anno
EP globale rinnovabile:
3.30 kW h/m² anno
EP invernale del fabbricato:
EP estiva del fabbricato:
Anno di costruzione:
2026
Riscaldamento:
Autonomo
Tipo impianto:
A pavimento
Tipo alimentazione:
Pannelli

Ti interessa visionare l'immobile?

Fissa un appuntamento  Fissa un appuntamento

Richiedi informazioni

Clicca su Leggi per aprire l'informativa
* Questi campi sono obbligatori

Calcola il tuo mutuo

Semplice e senza impegno
Anticipo

( % )
Mutuo

( % )

pochi semplici passi

inserisci i tuoi dati
Questionario completato
Grazie per aver richiesto un appuntamento senza impegno con un nostro Consulente del Credito e Assicurativo.

Hai inserito correttamente tutti i dati necessari e a breve riceverai una e-mail con un link da convalidare per inviare i tuoi dati.
Affiliato
Vicus Case Srl
Via Grandi, 8/A 35010 Vigonza (PD)

Il nostro staff


  • Alessandro Berto
    Affiliato

  • Cristina Sartorato
    Coordinatrice

  • Annalaura Zambon
    Coordinatrice
Via Grandi, 8/A 35010 Vigonza (PD)
Zona: Vigonza
Mostra su mappa
Orari: lunedì-venerdì 8.30-12.30/ 15.00-19.30; sabato 9.00-13.00
Affiliato
Vicus Case Srl
Via Grandi, 8/A 35010 Vigonza (PD)

2026 Tecnocasa Franchising S.p.A. - P. IVA 08365160152 - Via Monte Bianco 60/A 20089 Rozzano (MI). Ogni agenzia ha un proprio titolare ed è autonoma. Privacy policy | Policy utilizzo | Cookie policy