Porzione di bifamiliare in vendita

Vigonza, Via Santo Stefano
€ 345.000
5 locali 5 locali
249 Mq 249 Mq
5 bagni 5 bagni

Porzione di bifamiliare in vendita

Vigonza, Via Santo Stefano

Descrizione annuncio

VIGONZA

Cosa sapere sull’immobile?

Proponiamo in vendita una porzione di bifamiliare sviluppata su due livelli con ingresso indipendente e scoperto privato. Una soluzione ampia e versatile, resa ancora più funzionale dall’ampliamento realizzato nel 2006, che ha aggiunto nuovi spazi e permette oggi la possibilità di ricavare due unità abitative distinte, grazie anche agli impianti già separati e alla predisposizione per due contatori.

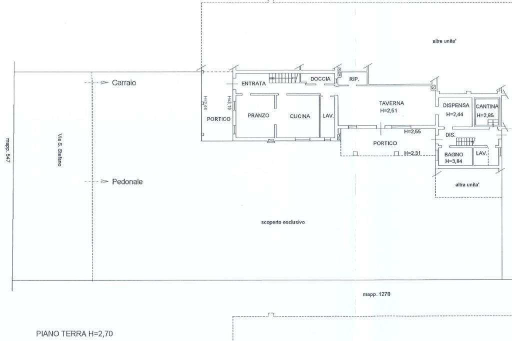
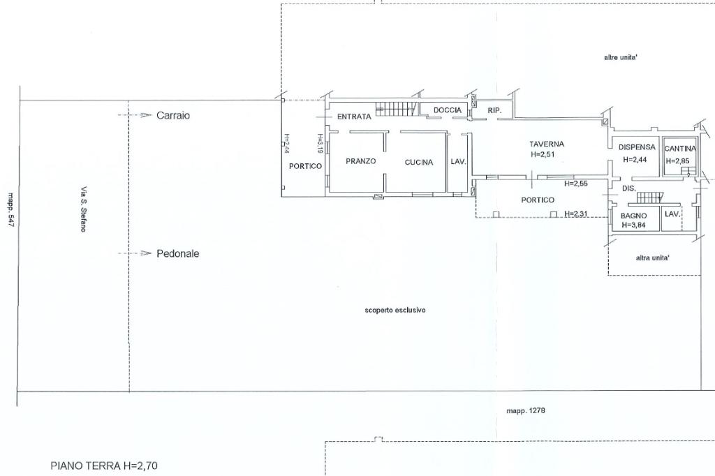
L’ingresso principale, situato nella parte frontale dell’abitazione, conduce a una zona giorno con cucina e soggiorno separati. Al piano terra si trovano inoltre un bagno cieco con doccia, una nicchia utilizzabile come ripostiglio e una stanza ad uso lavanderia.

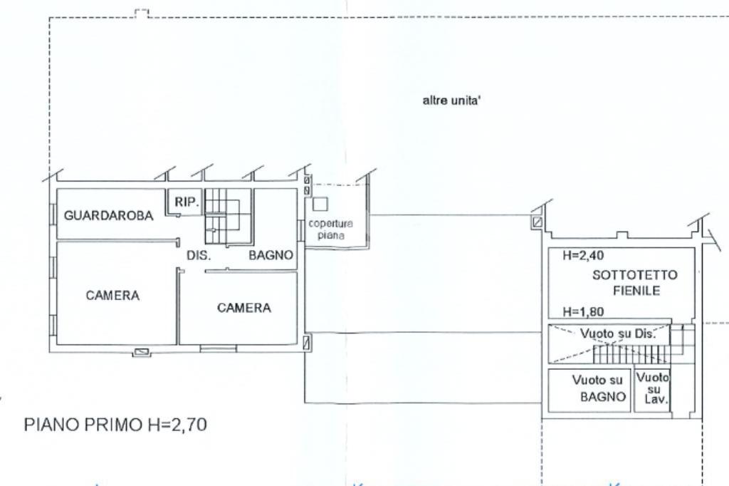
Al piano superiore della parte principale si sviluppa la zona notte, composta da tre camere: una matrimoniale, una doppia e una singola, e da un bagno con predisposizione per la doccia. Gli ambienti risultano luminosi e ben distribuiti, ideali per ospitare una famiglia numerosa o per chi desidera spazi separati e funzionali.


Proseguendo nella parte ampliata della casa, troviamo un secondo soggiorno spazioso, anch’esso con cucina separata, un bagno finestrato con doccia, una cantina e una zona lavanderia. Una scala interna conduce al sottotetto, dove è presente una stanza doppia, perfetta come camera, studio o area hobby.

Cosa sapere sulla zona esterna?

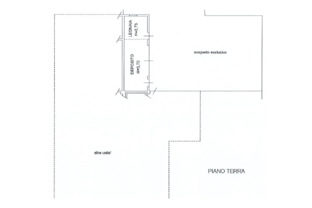
Esternamente l’abitazione dispone di uno scoperto privato con giardino nella parte frontale, due posti auto coperti sotto il portico e un garage singolo. Sul retro si trovano un’ulteriore zona ripostiglio/garage e un’area dedicata all’orto, perfetta per chi ama trascorrere il tempo all’aperto o coltivare uno spazio verde personale.

Ulteriori informazioni

La costruzione originaria dell’abitazione risale al 1982, mentre nel 2006 è stato realizzato un ampliamento che ha aggiunto nuovi spazi, tra cui la camera nel sottotetto e il bagno finestrato con doccia.
Nel 2015 è stato eseguito il rifacimento della guaina del tetto, e nel 2017 l’intera facciata esterna è stata ridipinta, conferendo alla casa un aspetto curato e attuale.

L’immobile dispone di infissi in vetrocamera e presenta impianti separati tra la parte originale e quella ampliata — rispettivamente del 1982 e del 2006 —, caratteristica che consente, per chi lo desidera, di suddividere la proprietà in due unità abitative indipendenti, ciascuna con i propri accessi e utenze.
L’abitazione gode inoltre di una favorevole esposizione nord-sud-est, che garantisce luminosità durante tutto l’arco della giornata.

Cosa sapere sulla zona?

La porzione si trova in zona tranquilla e ben servita, comoda ai principali servizi e alle vie di comunicazione, ideale per chi desidera vivere in un contesto silenzioso ma allo stesso tempo vicino ai centri abitati di riferimento.

LA POSIZIONE È APPROSSIMATIVA PER MOTIVI DI PRIVACY.

Per maggiori informazioni o per fissare una visita, contattaci ai numeri:
049.8097681 – 348.5581961
pdhp5

Mostra tutto

Nelle vicinanze

Trasporto pubblico Trasporto pubblico
Vigonza-Pianiga
Vigonza-Pianiga
2,5 Km
Ricariche auto elettriche Ricariche auto elettriche
VIGONZA Costituzione | BECHARGE
1,2 Km
Scuole Scuole
Scuole
770 m
Scuola Media Don Milani
890 m
Scuola Primaria "Ruzante"
1,2 Km
Scuola Primaria “Bonaventura da Peraga”
1,9 Km
Scuola Materna
2,0 Km
Farmacia Farmacia
Farmacia Balbinot Dott.Ssa Gloria
2,9 Km
Ospedali Ospedali
Ospedali
2,7 Km
Supermercati Supermercati
Ali
880 m
Bar Bar
Bar Centrale
840 m
Caffè Degli Artisti
1,2 Km
Movembik
1,3 Km
Ristoranti Ristoranti
Marchioro
930 m
Ostaria da Ciccio
1,7 Km
Trattoria Piccolo Giorgio
1,9 Km
Tratoria ai Siegoi
2,0 Km
Antichi Sapori
2,3 Km
Mostra tutto

Caratteristiche

Rif.:
61138142
Piano:
2 di 2 (Piano su più livelli)
Box:
1
Posti auto:
3
Camere da letto:
4
Arredamento:
Parziale
Mostra tutto
Prezzo Prezzo
€ 345.000
Rata mutuo Rata mutuo
€ 1.639 / mese
Spese annue Spese annue
€ 0
Proponi il tuo prezzoProponi il tuo prezzo

Classe Energetica

F
F
F
F
F
F
F
F
F
EP globale non rinnovabile:
329.84 kW h/m² anno
EP globale rinnovabile:
1.19 kW h/m² anno
EP invernale del fabbricato:
EP estiva del fabbricato:
Anno di costruzione:
1982
Riscaldamento:
Autonomo
Tipo impianto:
A radiatori
Tipo alimentazione:
Metano

Ti interessa visionare l'immobile?

Fissa un appuntamento  Fissa un appuntamento

Richiedi informazioni

Clicca su Leggi per aprire l'informativa
* Questi campi sono obbligatori

Calcola il tuo mutuo

Semplice e senza impegno
Anticipo

( % )
Mutuo

( % )

pochi semplici passi

inserisci i tuoi dati
Questionario completato
Grazie per aver richiesto un appuntamento senza impegno con un nostro Consulente del Credito e Assicurativo.

Hai inserito correttamente tutti i dati necessari e a breve riceverai una e-mail con un link da convalidare per inviare i tuoi dati.
Affiliato
Vicus Case Srl
Via Grandi, 8/A 35010 Vigonza (PD)

Il nostro staff


  • Alessandro Berto
    Affiliato

  • Cristina Sartorato
    Coordinatrice

  • Annalaura Zambon
    Coordinatrice
Via Grandi, 8/A 35010 Vigonza (PD)
Zona: Vigonza
Mostra su mappa
Orari: lunedì-venerdì 8.30-12.30/ 15.00-19.30; sabato 9.00-13.00
Affiliato
Vicus Case Srl
Via Grandi, 8/A 35010 Vigonza (PD)

2026 Tecnocasa Franchising S.p.A. - P. IVA 08365160152 - Via Monte Bianco 60/A 20089 Rozzano (MI). Ogni agenzia ha un proprio titolare ed è autonoma. Privacy policy | Policy utilizzo | Cookie policy